主宰|田名後康明

 

 

略歴

1996_ 2000          芝浦工業大学 工学部 建築工学科 三宅研究室 卒業 工学学士

2000_ 2002          横浜国立大学大学院 工学研究科 計画建設学専攻 第8講座(設計意匠)修了 工学修士

2002_ 2003          伊東豊雄建築設計事務所、渋谷区東京 研修

2004_ 2005          3LHDおよびクロアチア万博事務局、ザグレブ|クロアチア 勤務

2005_ 2008          Bucholz McEvoy Architects、ダブリン|アイルランド 勤務

2008_ 2011          スイス・イタリア語圏大学大学院 メンドリジオ建築アカデミー 設計意匠 修了 科学修士

2011_              スイス政府認定建築士

2009_ 2010          VALERIO OLGIATI、フリムス|スイス 勤務

2010                     国際ソーシャルハウジングワークショップ、アーメダバード|インド 修了

2011_ 2013          HHF architects、バーゼル|スイス 勤務

2013_              田名後康明建築設計事務所、主宰

2014_              芝浦工業大学、非常勤講師

受賞歴

2001                     松之山自然科学館「森の学校」実施設計コンペ案 *3 松之山|新潟、2等受賞

2002                     ハウジング・コンプレックス九段南 三井不動産住空間デザインコンペ案 *1 千代田区|東京、優秀賞

2002                     松之山自然科学館案*3 + 大滝村体験交流施設案*1、せんだいデザインリーグ2002 特別賞

2003                     アルミニウム建築構造デザインコンペ案「アルミニウムの雪」 *1 軽井沢|長野、優秀賞

2004                     program ČIP50+ | gen next クロアチア建築家協会より次世代建築家に認定 ザグレブ、クロアチア

2005                     愛知万博 クロアチア館 EXPO2005 *4 長久手|愛知、Bernardo Bernardi Award 受賞

2008_ 2011          スイス・イタリア語圏大学大学院 メンドリジオ建築アカデミー給費留学生 選出

2009                     Elm Park 複合開発 *5 ダブリン|アイルランド、The Chicago Athenaeum受賞

2013                     () 浜田山保育園実施設計監理プロポーザルコンペ案 *8 杉並|東京、最優秀賞受賞

2015                     防災と減災のための津島型住宅モデル提案競技「水と生きる家」 *10 津島|愛知、最優秀賞受賞

プロジェクト

2001

2001

2002

2002

2003

2003_

2004

2003_ 2005

2004_ 2008

 

松之山自然科学館「森の学校」実施設計コンペ案 *3 松之山|新潟

13 acres School and Botanic Garden案 *2 イーストクレイトン|カナダ

ハウジング・コンプレックス九段南 三井不動産住空間デザインコンペ案 *1 千代田区|東京

大滝村体験交流施設 実施設計コンペ案 *1 新井|新潟

アルミニウム建築構造デザインコンペ案 「アルミニウムの雪」 *1 軽井沢|長野

シングルファミリーハウス *1 さいたま|埼玉

水上レストラン *1 ブレッド|スロベニア

愛知万博 クロアチア館 EXPO2005 *4 長久手|愛知

Elm Park ゼロエミッション複合開発 *5 ダブリン|アイルランド

2006

2007_ 2008

2008

2009

2009

2009_ 2010

2010_

2010

2010

2011

2011_

2012_

2013_

2013_2015

2014

2014_

2015_ 2015_ 2015_

潮汐公園 *5 ダブリン|アイルランド

ジョージアン・ハウスの改修 *5 リムリック|アイルランド

タワーアパートメント セビリア|スペイン

ポルトワインセンター ポルト|ポルトガル

オーディトリアム実施設計コンペ案 ビューレン|スイス

ミネラルウォーター ”Passugger” ガラスボトルデザイン *6 パスーグ|スイス

タワーアパートメント *6 リマ|ペルー

ソーシャルハウジング アーメダバード|インド

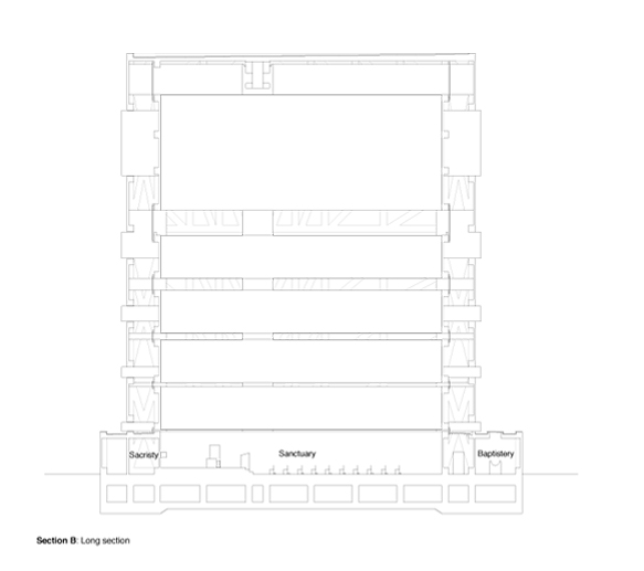
カトリック教会 ヴァレーゼ|イタリア

ボロウ癌センター ロンドン|イギリス

モントルーのコンドミニアム *7 モントルー|スイス

複合街区の改編 *7 ジュネーブ|スイス

ロシア文学者の書庫 *1 秦野|神奈川

浜田山の保育園 *8 杉並区|東京

フィットネスクラブ 小岩 / フィットネスクラブ 南青山 改修 *8 東京|日本

伯方島サーベイ/マスタープラン 愛媛|日本

水と生きる家 *10 愛知|日本 オーロラ観測のプラットフォーム ティンゲリ|アイスランド
小さな家 
ティンゲリ|アイスランド

キャプション

*1 佐久間泰行と協働 *2 佐久間泰行、南真也と協働 *3 佐久間泰行、山本力矢と協働 *4 3LHDと協働 *5 BMcEAにて担当

*6 VALERIO OLGIATIにて担当 *7 HHF architectsにて担当 *8 小松豪一級建築士事務所と協働 *9 style laboと協働 *10 中村広毅と協働

プロジェクト掲載誌

2001                     松之山自然科学館「森の学校」実施設計コンペ案 『新建築』2001 05, 新建築社|日本

2002                     ハウジング・コンプレックス九段南 住空間デザインコンペ案 *1 『新建築』2002 11, 新建築社|日本

2004                     アルミニウムの雪 『AL 建』Vol.9 No.25 2004, アルミニウム建築構造協議会|日本

2004                     個展「田名後康明+佐久間泰行 5プロジェクト/5プレゼンテーション」

                       VJESNIK19 April(クロアチア日刊全国紙)個展評「インテリアとしての自然」|クロアチア

2005                     愛知万博クロアチア館 『新建築』2005 05, 新建築社|日本、『GA JAPAN 074』, ADA edita Tokyo|日本

2010                     Elm Parkゼロエミッション複合開発 『Zumtobel Group Award 2010Aedes Gallery|ドイツ

2011                     リマのタワーアパートメント『EL croquis 156 VALERIO OLGIATIELcroquis|スペイン

2012                     ヴァレリオ・オルジャティ展図録 国立近代美術館東京|日本

2013                     モントルーのコンドミニアム群『HHF monogarphArchilife|韓国

2015                     水と生きる家*10 『中日新聞』2015.3.28朝刊、愛知|日本

著書

1999                     五十嵐太郎編『READINGS 1 建築の書物/都市の書物』INAX出版 編集協力

2000                     塚本由晴、貝島桃代監修『10+1トーキョー・リサイクル計画』INAX出版「施設のリサイクル|東京湾岸」項共著

2002                     修士論文「伊東豊雄論  その仕切ることとそうでないこと」横浜国立大学大学院 主査:北山恒 副査:吉田鋼一

2004                     『covjek + proctor 07−08』Croatian Architects’ Association, Zagreb, CROATIA

                             個展「田名後康明+佐久間泰行 5 projects / 5 presentations」寄稿:Sandra Crižić Roban、伊東豊雄、五十嵐太郎

2005                     『oris 32』oris d.o.o. ザグレブ|クロアチア 「メディアとしての建築の役割 万博建築批評」

                             (原題:Role of Architecture as Medium – Criticism on EXPO architecture)

2012                     HHF architects『HHF Paper 2』バーゼル|スイス  インタビュー記事「Park in Carrières sous Poissy, France

展覧会

2002                     せんだいデザインリーグ2002 松之山自然科学館「森の学校」 *3 + 大滝村体験交流施設 *1、特別賞

                             せんだいメディアテーク、仙台|宮城

2004                     個展「田名後康明+佐久間泰行 5 projects / 5 presentationsGallery Crižić Roban ザグレブ|クロアチア

                             主催 Gallery Crižić Roban, 3LHD, Zagreb Society of Architects 協賛 在クロアチア日本大使館

2005                     2005年日本国際博覧会 愛知万博 クロアチア館 長久手|日本

2012                     ヴァレリオ・オルジャティ展 タワーアパートメント・リマ 東京国立近代美術館|東京

                             主催 東京国立近代美術館、スイス連邦工科大学チューリヒ建築理論・建築史研究所

Chair Person | Yasuaki TANAGO

 

 

Biography

1996_ 2000          Shibaura Institute of Technology, Bachelor of Engineering in Architecture, Prof. Riichi Miyake,  Tokyo | Japan

2000_ 2002          Yokohama National University Graduate School, Master of Engineering in Architecture,

                             Prof. Koh Kitayama and Prof. Ryue Nishizawa

2002_ 2003          Toyo Ito, Associates and Architects, Shibuya | Tokyo

2004_ 2005          3LHD and Croatia Expo Office, Zagreb | Croatia

2005_ 2008          Bucholz McEvoy Architects, Dublin | Ireland

2008_ 2011          Accademia di Architettura Mendrisio USI, Master of Science in Architecture, Mendrisio | Switzerland

2011_                   Certified Architects in Switzerland

2009_ 2010          VALERIO OLGIATI, Flims | Switzerland

2010                     Workshop on International Social Housing 2010, Ahmedabad | India

2011_ 2013          HHF architects, Basel | Switzerland

2013_                   Chair Person at Yasuaki Tanago Associates Architects, Tokyo | Japan

2014_                   Visiting Lecturer at Shibaura Institute of Technology, Tokyo | Japan

Awards

2001                     Natural Science Museum in Matsunoyama Competition *3, 2nd Prize, Matsunoyama | Niigata

2002                     Housing Complex Kudan-Minami *1, 2nd Prize, Tokyo | Japan

2002                     Sendai Design League *3, Special Prize, Sendai | Japan

2003                     Aluminium Architecture Structure Design Competition *1 2nd Prize, Karuizawa | Japan

2004                     Emerging Architect Selection program ČIP50+ | gen next, Croatia Architects Institute, Zagreb | Croatia

2005                     EXPO2005 JAPAN Croatia Pavilion *4 Bernardo Bernardi Award, Zagreb | Croatia

2008_ 2011          Scholarship at Accademia di Architettura, Mendrisio | Switzerland

2009                     Elm Park Zero Emission Development *5, Dublin|Ireland, The Chicago Athenaeum etc

2013                     Hamadayama Crèche Competition *8,  1st Prize, Tokyo | Japan

2015                     Disaster prevention housing competition *10  1st Prize, Aichi | Japan

Projects

2001

2001

2002

2002

2003

2003_

2004

2003_ 2005

2004_ 2008

2006

2007_ 2008

2008

2009

2009

2009_ 2010

2010_

2010

2010

2011

2011_

2012_

2013_ 2015

2013_ 2015

2014

2014_

2015_ 2015_ 2015_

 

Natural Science Museum in Matsunoyama *3 Matsunoyama | Japan

13 acres School and Botanic Garden *2 East Clayton | Canada

Housing Complex Kudan Minami *1 Tokyo | Japan

Agritourism Centre *1 Arai | Japan

Aluminium Snow: Mountain Cabin *1 Karuizawa | Japan

Single Family House *1 Saitama | Japan

Floating Reataurant on Lake Bled *1 Bled | Slovenia

EXPO2005 JAPAN Croatia Pavilion *4 Nagakute | Japan

Elm Park Zero Emission Mixed-use Development *5 Dublin | Ireland

Tidal Park *5 Dublin | Ireland

Hartstonge House: Georgian house renovation *5 Limerick | Ireland

Tower Apartment  Seville | Spain

Porto Wine Centre  Porto | Portugal

Büren Auditorium, Büren an der aare | Switzerland

Glass bottle ”Passugger / Allegra” *6 Passugg | Switzerland

Tower Apartment *6 Lima|Peru

Social Apartment  Ahmedabad | India

Catholic Church  Varese | Italy

Borough Cancer Institute  London | UK

Montreux Condominium *7 Montreux | Switzerland

ROUTE DES ACACIAS *7 Geneva | Switzerland

Private Library for Russian Literary *1  Hadano | Japan

Hamadayama Crèche *8 Tokyo | Japan

Fitness Centre Koiwa / Fitness Centre Minami Aoyama *9 Renovation Tokyo | Japan

Hakatajima Island Survey and Masterplan  Ehime | Japan

House for / against water *10 Aichi | Japan The Platform: The observation platform for Northern Lights and openair workshop  Þingeyri | Iceland The Tiny Houses  Þingeyri | Iceland

Caption

*1 In collaboration with Yasuyuki Sakuma *2 In collaboration with Yasuyuki Sakuma, Shinya Minami *3 In collaboration with Yasuyuki Sakuma, Rikiya Yamamoto

*4 In collaboration with 3LHD *5 In charge of the project at BMcEA *6 In charge of the project at VALERIO OLGIATI *7 In charge of the project at HHF

*8 In cooperation with Go Komatsu Architects *9 In cooperation with style labo   *10 In collaboration with Hiroki Nakamura

Magazine carrying the projects

2001              Natural Science Museum in Matsunoyama Competition *3 “Shinkenchiku“ 2001 05, Shinkenchiku-sha, Tokyo | Japan

2002              Housing Complex Kudan-Minami *1 “Shinkenchiku“ 2002 11, Shinkenchiku-sha, Tokyo | Japan

2004              Aluminium Snow “AL KEN“ Vol.9 No.25 2004, Aluminium Architectural Structures Association, Tokyo | Japan

2004              Priroda Kao Interijer “VJESNIK” 20040419 Croatian daily broadsheet newspaper, Zagreb | Croatia

                              Author | Nikolina Vrekalo Criticism on the exhibition “5 projects / 5 presentations”

2005              EXPO2005 JAPAN Croatia Pavilion *4  “Shinkenchiku“ 2005 05, shinkenchiku-sha, “GA JAPAN 074“ ADA edita Tokyo

2010              Elm Park Zero Emission Development *5  “Zumtobel Group Award 2010“ Aedes Gallery, Berlin | Germany

2011              Tower Apartment *6 “EL croquis 156 VALERIO OLGIATI“ ELcroquis | Spain

2012              Tower Apartment *6 “VALERIO OLGIATI AT THE MUSEUM“ Museum of Modern Art Tokyo, Tokyo | Japan

2013              Montreux Condominium *7 HHF monograph Archilife, Soul | Korea

2015                     House [for / against] Water *10 "The Chunichi Shimbun" 20150328, Japanese daily broadsheet newspaper, Aichi | Japan

Bibliography                                                                                                                                                                                                    1999                     Taro Igarashi “Books for Architecture / Books for Urbanism” INAX Publishing, Japan, Contribution | Yasuaki Tanago

2000                     Atelier Bow-Wow “Planning for Tokyo Recycle | 10+1” No.21 INAX Publishing, Japan, Contribution | Yasuaki Tanago

2002                     Master thesis "Study on Toyo Ito" Yokohama National University Graduate School, Japan

2002                     13 acres School and Botanic Garden “School Yard Park” University of British Columbia, Canada

2004                     Strutura ludičkog “covjek i prostor | man and space” Croatian Architects Association, Croatia

                             Article on the exhibition “5 projects / 5 presentations Yasuaki Tanago + Yasuyuki Sakuma”

                             Contributors | Sandra Križić Roban, Toyo Ito, Taro Igarashi

2005                     Essay Role of Architecture as Medium - Criticism on EXPO architecture “oris 32” Oris, Croatia, Author | Yasuaki Tanago

2012                     HHF architects『HHF Paper 2』Switzerland

                             Interview on Park in Carrières sous Poissy, France 201208 “HHF paper 2“, Switzerland, Auther | Yasuaki Tanago

Exhibitions

2002                     Sendai Design League 2002, Sendai Mediatheque, Sendai | Japan *3

                             Organizers; Sendai Mediatheque, Sendai students committee for architecture and urbanism

2004                     5 projects / 5 presentations Yasuaki Tanago + Yasuyuki Sakuma | Gallery Križić Roban, Zagreb | Croatia

                             Organizers: Croatian Architects Association, Architectural Institute of Zagreb, Sandra Križić Roban, 3LHD,

                             Embassy of Japan

2005                     EXPO2005 JAPAN Croatia Pavilion *4, Nagakute | Japan

2012                     VALERIO OLGIATI EXHIBITION Tower Apartment in Lima, National Museum of Modern Art Tokyo, Tokyo | Japan

                             Organizers: National Museum of Modern Art Tokyo, ETHZ DARCH

© 2015 Yasuaki Tanago Associates Architects